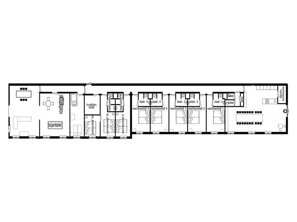
Bij de Lamperse hei proeft u de Brabantse gezelligheid, u kunt overnachten op de boerderij met het luxe niveau van een hotel! Alle kamers zijn toegankelijk voor mindervaliden en er is één volledig aangepaste badkamer met douche en toilet. Er is WiFi aanwezig, en een sauna waar u gebruik van mag maken.

Maar natuurlijk kunt u ook rustig op de accommodatie verblijven, er is zowel binnen als buiten van alles te beleven. 

(Helaas hebben we geen fietsen meer waarvan u gebruik kunt maken.)

Groepsaccommodatie

Volledige accomodatie reserveren, met gebruik van alle faciliteiten inclusief keuken.

  • De Boerenschuur

    Groepsaccommodatie
    Groepen van wel 20 personen kunnen op onze boerderij gebruik maken van 8 slaapkamers, woonkamer, keuken, plus alle aanwezige faciliteiten/voorzieningen, zoals onze sauna en zwembad, inclusief een goed uitgeruste keuken. Eén kamer heeft direct ernaast een algemeen toegankelijke, voor mindervaliden volledig aangepaste badkamer met douche en toilet. Extra stretchers zijn mogelijk.
    996 bij 2 nachten
    Enkele mogelijkheden:
    lang weekend (ma-vr) / midweek (ma-vr) / week (ma-ma)